Home
About Us
Services
Expertises
Contact
Mold Design Lab
Home
About Us
Services
Expertises
Contact
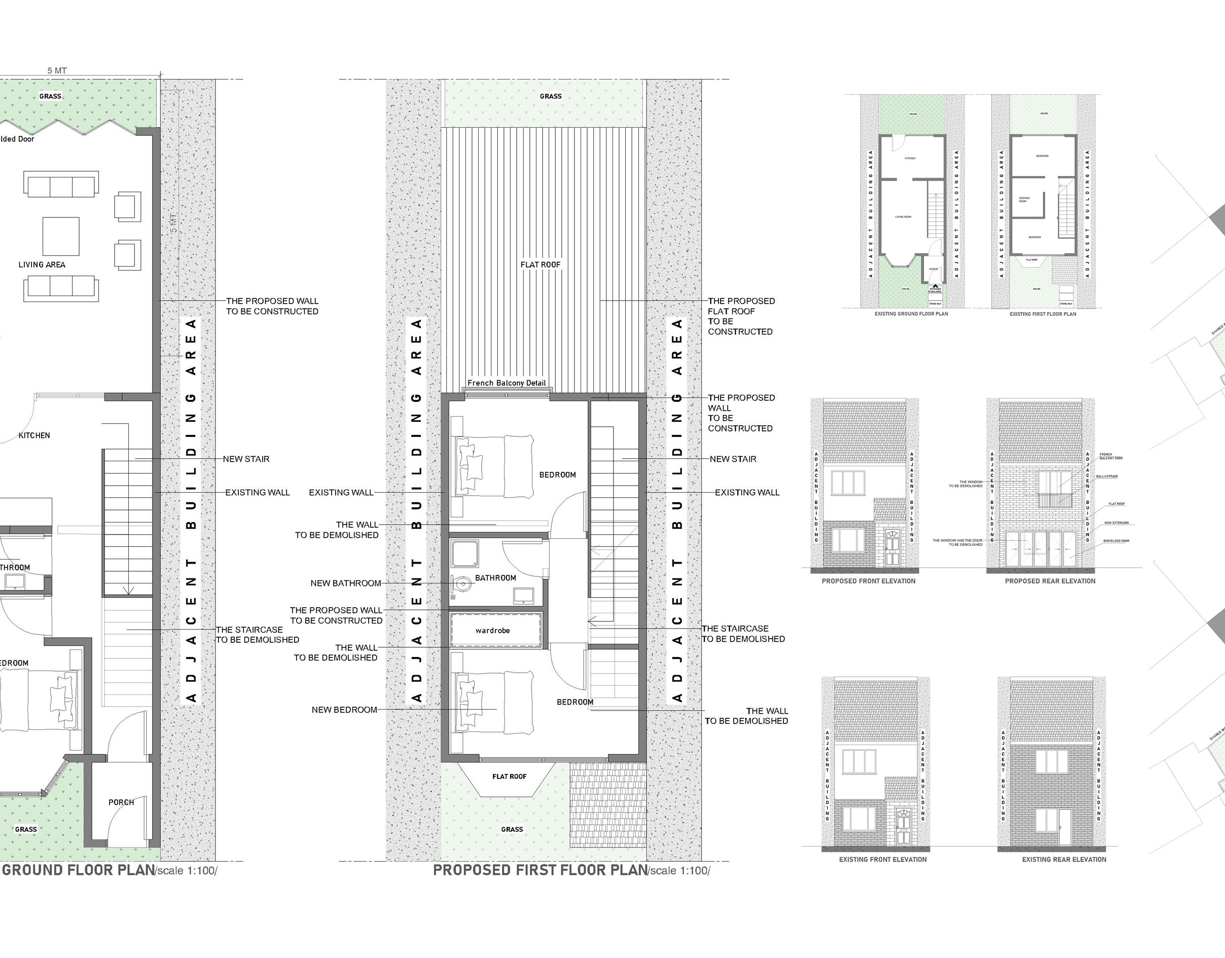
HOUSE EXTENSIONS
Architectural Design
Interior Design
Planning Applications
Building Regulations
3D Design & Visualisation
Specifications
@2024 copyrights belongs to Mold Design Lab ©