Home
About Us
Services
Expertises
Contact
Home
About Us
Services
Expertises
Contact
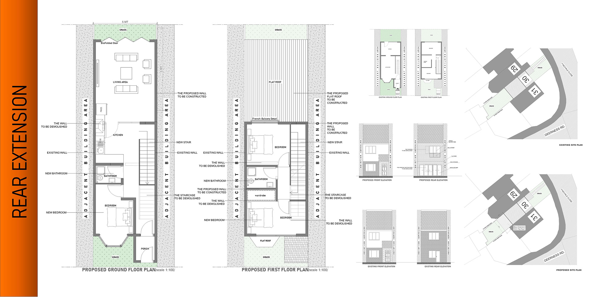
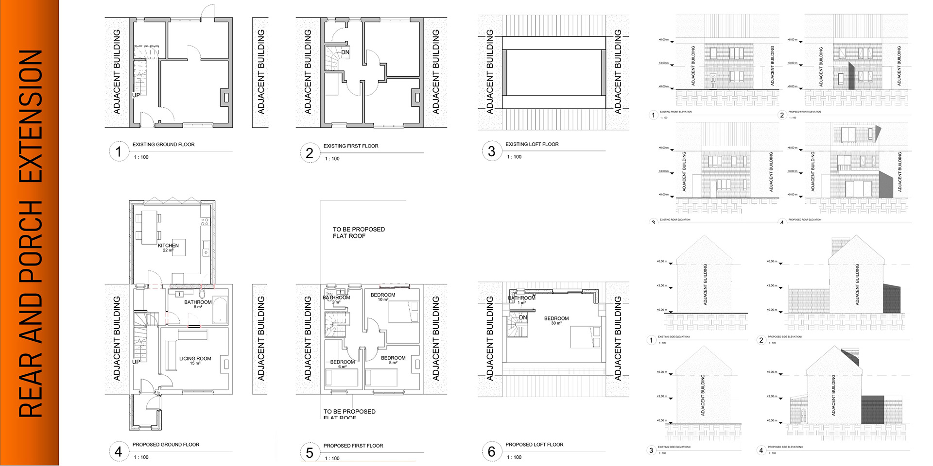
HOUSE EXTENSIONS
You may also like
3D Design & Visualisation
2024
Planning Applications
2023
Architectural Design
2024
Interior Design
2023
Specifications
2023
Building Regulations
2023
↑
Back to Top